۰۹ بهمن ۱۴۰۴
به روز شده در: ۰۹ بهمن ۱۴۰۴ - ۱۰:۳۱
فیلم بیشتر »»
کد خبر ۱۱۳۰۷۹۶
تاریخ انتشار: ۰۹:۳۳ - ۲۶-۱۰-۱۴۰۴
کد ۱۱۳۰۷۹۶
انتشار: ۰۹:۳۳ - ۲۶-۱۰-۱۴۰۴

تبدیل انبار قدیمی به دفتر مرکزی مدرن (+تصاویر)

تبدیل انبار قدیمی به دفتر مرکزی مدرن (+تصاویر)
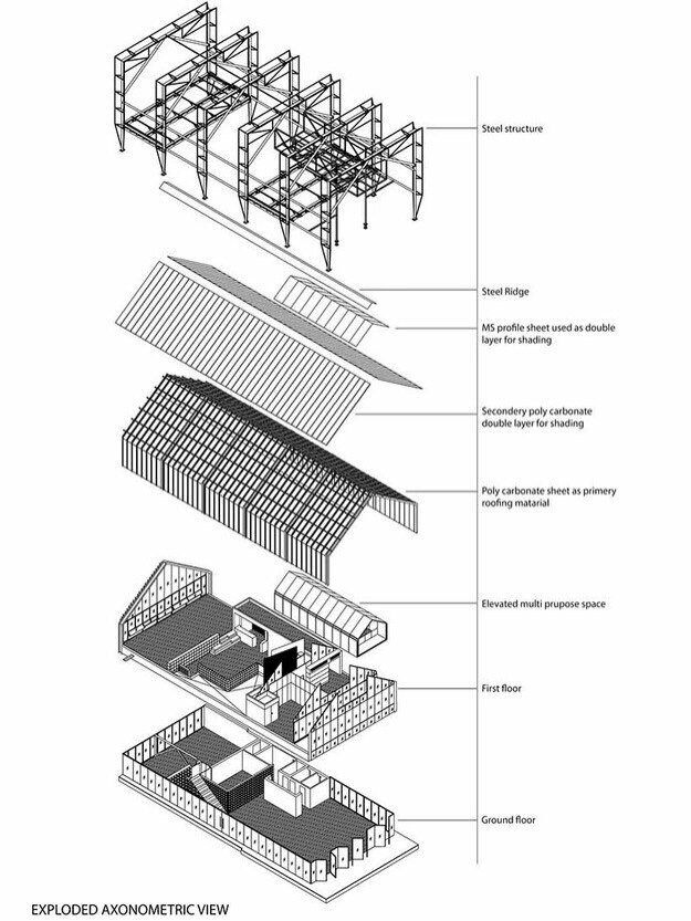
گروه معماری دهسار با بازسازی یک انبار قدیمی در شهر داکا، دفتر مرکزی "The Blues" را به فضایی مدرن و منعطف تبدیل کرد. این پروژه با بهره‌گیری از نور طبیعی و هندسه لایه‌بندی شده، الگویی نوین برای طراحی محیط‌های کاری در بناهای تغییرکاربری داده شده ارائه می‌دهد.

عصر ایران - پروژه دفتر مرکزی "The Blues" که توسط گروه معماری «دهسار» طراحی شده، نمونه‌ای شاخص از بازسازی بناهای قدیمی و تبدیل آن‌ها به فضاهای اداری معاصر در داکا، بنگلادش است. این پروژه با استفاده از راهکارهای دقیق فضایی و متریال‌شناسی، یک انبار سابق را به محیطی کارآمد برای فعالیت‌های حرفه‌ای تبدیل کرده است.

نمای داخلی دفتر مرکزی مدرن The Blues در داکا با طراحی باز، سقف‌های اکسپوز (نمایان) و استفاده بهینه از نور طبیعی در فضای کاری.

استراتژی فضایی و شفافیت بصری

طراحی این بنا بر پایه اصل شفافیت و تداوم بصری استوار است. این رویکرد اجازه می‌دهد نور طبیعی روز به اعماق فضای داخلی نفوذ کند، در حالی که مرزهای عملکردی میان محیط‌های کاری، اتاق‌های جلسات و بخش‌های اجتماعی به‌خوبی حفظ شده است.

نمای داخلی دفتر مرکزی مدرن The Blues در داکا با طراحی باز، سقف‌های اکسپوز (نمایان) و استفاده بهینه از نور طبیعی در فضای کاری.

انعطاف‌پذیری و منطق معماری

در این پروژه، به جای استفاده از یک چیدمان ثابت، از هندسه‌های لایه‌بندی شده، عناصر ساختاری نمایان و پالت محدودی از متریال‌ها استفاده شده تا یک سیستم معماری منعطف ایجاد شود. طراحان با اولویت دادن به قابلیت تطبیق‌پذیری و وضوح فضایی، نشان داده‌اند که چگونه تفکر پارامتریک و منطق معماری می‌تواند از شیوه‌های در حال تکامل کار پشتیبانی کند. این پروژه در چارچوب «استفاده مجدد تطبیقی»، هویت سازمانی مجموعه را نیز تقویت کرده است.

ارسال به دوستان
بارش برف و باران در ۲۰ استان کشور نمایش فولکس واگن تیونینگ با رینگ‌های لکسانی (+عکس) در صورت حمله ترامپ به ایران، اهداف احتمالی چه خواهد بود؟ سقوط یک هواپیما در مرز کلمبیا و ونزوئلا/ همه سرنشینان کشته شدند پروژه «آگری‌نستور»؛ همزیستی خلاقانه کشاورزی و سکونت در معماری ویتنام (+عکس) تغییرات محسوسی که بعد از ترک قهوه دچارش می‌شوید یونیسف: یک میلیون کودک در غزه نیازمند حمایت فوری روانشناسی هستند چرا اخراج یک ژنرال ارشد، ارتش چین را وارد بحران کرده است؟ نماینده مجلس: دشمن با انتشار اسامی فرزندان مسئولان در خارج، قصد ناامید کردن مردم را دارد مرسدس بنز ۱۷۰ H؛ چرا شبیه فولکس واگن بیتل است / پای کپی در میان است یا دلیل دیگری دارد؟! (+عکس) "شخصیت" سپری در برابر آلزایمر گزارش عملیات دو برادر آمریکایی در جنگ سرد: وزیر خارجه و رئیس سیا زیباکلام: تندروها سرشان را زیر برف کرده اند و اساسا نمی‌خواهند واقعیت‌های کشور را ببینند فورد رقبا را به چالش کشید: رانندگی تمام خودران سطح ۳ تا سال ۲۰۲۸ فراگیر می‌شود هنر ترکیب تصاویر؛ نگاهی به کلاژهای مینیمال و سوررئال فونتانزی (+عکس)