۰۹ بهمن ۱۴۰۴
به روز شده در: ۰۹ بهمن ۱۴۰۴ - ۰۲:۰۰
فیلم بیشتر »»
کد خبر ۱۱۳۲۶۳۳
تاریخ انتشار: ۱۸:۳۵ - ۲۵-۱۰-۱۴۰۴
کد ۱۱۳۲۶۳۳
انتشار: ۱۸:۳۵ - ۲۵-۱۰-۱۴۰۴

معماری جعبه ای: سبک پرطرفدار این روزها (+تصاویر)

معماری جعبه ای: سبک پرطرفدار این روزها (+تصاویر)
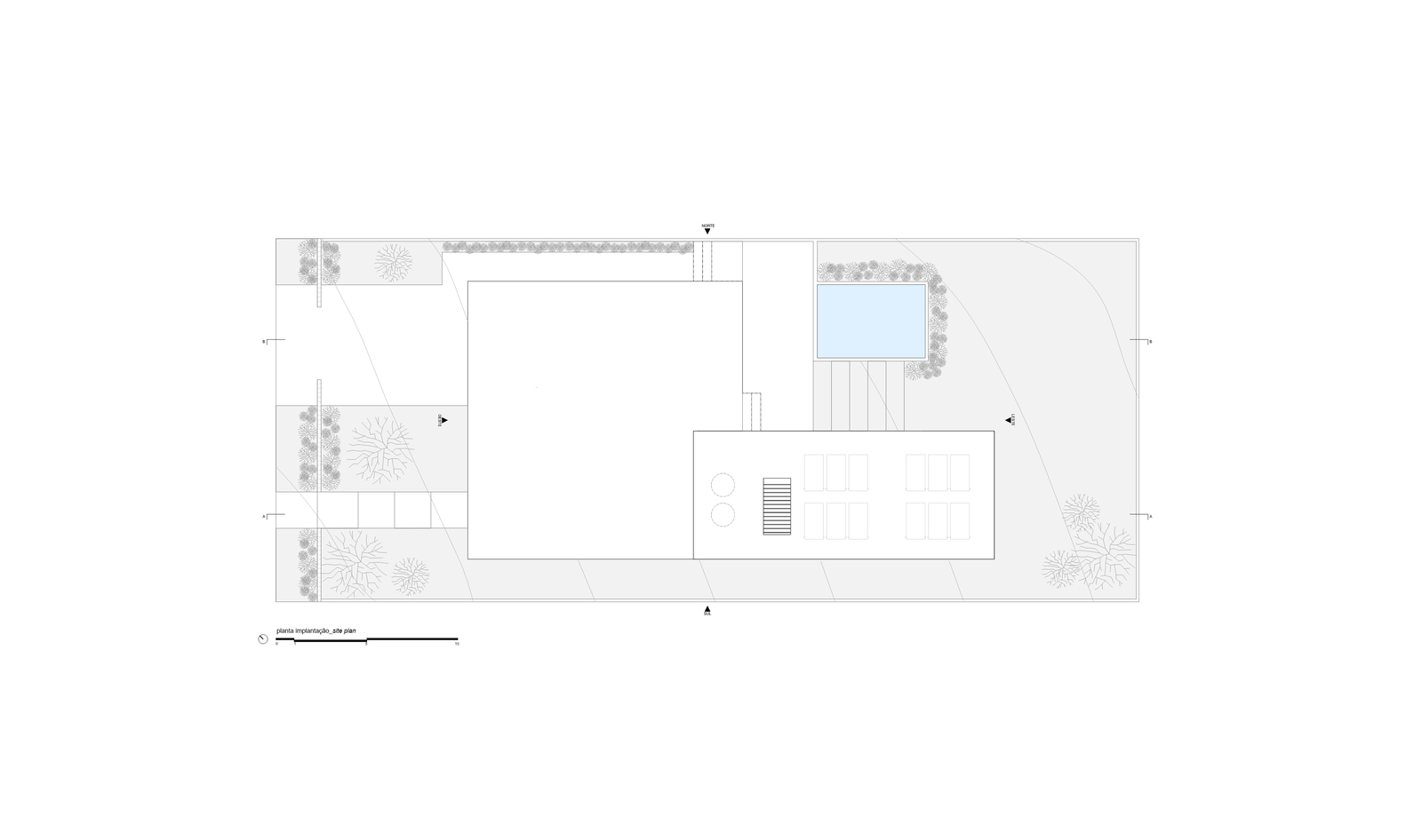
این پروژه طراحی ویلا تجربه زندگی هماهنگ با فضای باز را در اولویت قرار می‌دهد و عناصر طبیعی را در هنگام سازگاری خانه با توپوگرافی زمین در خود جای می‌دهد و به امتدادی از چشم‌انداز تبدیل می‌شود.

عصر ایران - این پروژه ویلا مسکونی به عنوان نمادی از هماهنگی بین معماری و زمین طبیعی ظاهر می‌ شود. این ویلا که در زمینی شیب‌ دار واقع شده، به گونه‌ ای طراحی شده است که با محیط اطراف خود ادغام شود.

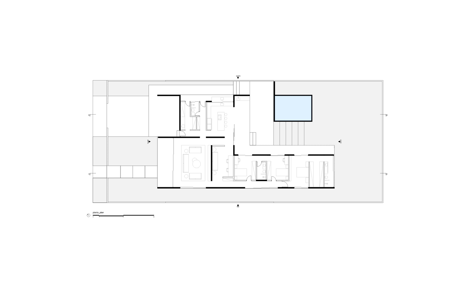
این پروژه به دلیل استفاده از بتن اکسپوز و آجر، که نه تنها استحکام و عملکرد سازه را تقویت می‌ کند، بلکه زیبایی‌ شناسی خام و اصیلی را ارائه می‌ دهد که قدرت مصالح را در خالص‌ ترین شکل خود منتقل می‌کند، متمایز است.

دیوارهای بتنی سازه‌ ای که مطابق با زمین بالا می‌ روند و شکل می‌ گیرند، نه تنها یک عنصر ساختمانی هستند، بلکه مظهر فلسفه بروتالیسم در بیان سازه به عنوان بخشی جدایی‌ ناپذیر از زیبایی‌ شناسی ساختمان نیز می‌ باشند. آجرهای توخالی که به طور استراتژیک در نمای اتاق خواب‌ ها قرار گرفته‌اند، به عنوان سایبان عمل می‌ کنند، میزان تابش نور مستقیم را کنترل می‌کنند و یکی از مرتبط‌ ترین اشیاء معماری: کوبوگو را تفسیر می‌ کنند.

بافت آجر و بتن در ویلا

استفاده از کوبوگو، نرمی و نفوذپذیری را به طرح می‌ افزاید، بین فضاهای داخلی و خارجی ارتباط ایجاد می‌ کند، به نور طبیعی اجازه ورود می‌ دهد و تهویه متقابل مؤثر را ارتقا می‌ دهد. علاوه بر انجام عملکردهای عملی، کوبوگو از ویژگی زیبایی‌ شناختی قوی برخوردار است و بازی سایه‌ هایی را ایجاد می‌ کند که در طول روز تغییر می‌ کنند و حس پویایی را در داخل خانه تشدید می‌ کنند. در شب، این جعبه به یک فانوس بزرگ تبدیل می‌ شود و طرح را روشن می‌ کند. انتخاب یک خانه یک طبقه، ایده ادغام با زمین را تقویت می‌ کند و ارتباط مستقیم و سیالی بین فضاهای داخلی و طبیعت اطراف برقرار می‌کند.

این پروژه طراحی ویلا تجربه زندگی هماهنگ با فضای باز را در اولویت قرار می‌دهد و عناصر طبیعی را در هنگام سازگاری خانه با توپوگرافی زمین در خود جای می‌دهد و به امتدادی از چشم‌انداز تبدیل می‌شود. استفاده از حجم‌های نوری با هندسه خالص به پروژه اجازه داد تا یکنواختی و عقلانیت را در طراحی خود حفظ کند و خانه را به سه بلوک تقسیم کند: خدماتی، اجتماعی و خصوصی. خانه‌ای ظاهراً ساده، اما از همان ابتدا داستانی پر از چالش و تلاش را در خود جای داده است.

دقت و فداکاری در اجرای دیوارها در جزئیات بتنی منعکس شده است. تک تک جزئیات خانه سلطنتی با دقت در نظر گرفته شده است تا محیطی منحصر به فرد ایجاد شود، جایی که بتن، آجر و طبیعت در کنار هم قرار می‌گیرند و نه تنها خانه‌ای برای ساکن فراهم می‌کنند، بلکه پناهگاهی منحصر به فرد هستند که در آن معماری به امتدادی از سبک زندگی او، در هماهنگی با فضا و زمان، تبدیل می‌شود.

خط معمار

پربیننده ترین پست همین یک ساعت اخیر
ارسال به دوستان
چرا ناوهای جنگی کلاس ترامپ گران‌ترین سلاح تاریخ می‌شوند؟ ۵۰ اقتصاد بزرگ جهان در سال ۲۰۲۶ بر اساس تولید ناخالص داخلی مورد انتظار (+ اینفوگرافیک) ۱۰۰ فیلم برتر دنیا از دید مجله تخصصی کایه دو سینما استاندار خراسان رضوی: برای واردات کالاهای مورد نیاز از افغانستان آمادگی کامل داریم افت محسوس نیازمند در دور برگشت لیگ برتر؛ ۶ گل در ۳ مسابقه ساعت خاص ستاره تکرارنشدنی دنیای فوتبال (+عکس) رئیس جمهور چین به آمریکا می رود رویاپردازی فولاد در لیگ و جام حذفی با مهره‌های جدید مکرون: به دنبال تحریم های جدید علیه روسیه هستیم سخنگوی سازمان تعزیرات حکومتی: مردم از ثبت‌نام در طرح فروش ایران‌خودرو خودداری کنند! تقابل طارمی و آژاکس در لیگ قهرمانان اروپا؛ ستاره ایرانی فیکس شد خودروی زیبای سوفیا لورن؛ بازخوانی پرونده یکی از نایاب‌ترین کلاسیک‌های جهان (+عکس) فرشاد احمدزاده فرشته نجات فولاد؛ اشک و انتقام در اهواز استراتژی های جالب حیوانات برای زمستان سرد/ ضدیخ عجیب و بغل کردن دستور پزشکیان برای انتشار مشخصات جانباختگان حوادث اخیر